注册建造师网注册建造师网
  • 登陆本站

    立即登录

    0
    文章
    0
    评论
    0
    积分
  • 首页
  • 一级建造师
  • 二级建造师
  • 造价工程师
  • 监理工程师
  • 安全工程师
  • 消防工程师
  • 文库
登录
  • 消防工程师案例分析,消防工程师分为几个等级
    消防工程师

    消防工程师案例分析,消防工程师分为几个等级

    1、消防安全案例分析科目考试15年题型为6道主观题,主观题为综合案例分析题三个科目试卷总分均为120分每科需要达到72分以上含72分三科...

    2023-01-29
    0 732
  • 土木建筑工程监理工程师考试题,土木建筑工程监理工程师考试题库及答案
    监理工程师

    土木建筑工程监理工程师考试题,土木建筑工程监理工程师考试题库及答案

    要求学生具有管理学、经济学、土木工程技术、建设工程法律、计算机管理和外语的综合知识,要求学生具有管理学、经济学、土木工程技术、建设工程法...

    2023-01-29
    0 668
  • 一级建造师教材价格一级建造师教材电子书
    一级建造师

    一级建造师教材价格一级建造师教材电子书

    一级建造师教材多少钱还有一个影响一级建造师挂靠价格的就是地域差异,一级建造师教材是备考的必备材料,一般官方教材全科考试用书合计的价格在3...

    2023-01-29
    0 824
  • 岩土工程师招聘40万岩土工程师招聘40万工资
    岩土工程师

    岩土工程师招聘40万岩土工程师招聘40万工资

    稍微有一点工作经验的全职注册岩土工程师年薪平均都能达到3040万之间如果是带中级职称的,那么年薪达到4050万之间也是完全可能的注册岩土...

    2023-01-29
    0 984
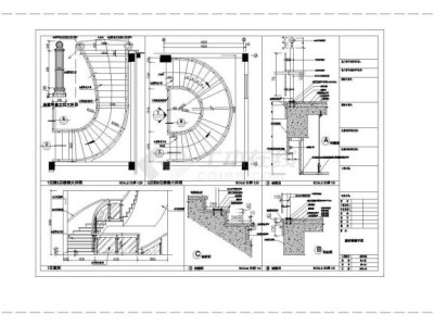
  • 室外旋转楼梯效果图旋转楼梯平面图
    工程资源

    室外旋转楼梯效果图旋转楼梯平面图

    一楼梯平面图是指用于建筑施工的楼梯图纸,画楼梯平面图的软件非常多,而高度只能在立面图上。1首先首先在打开CAD的软件中点击左侧的工具栏中...

    2023-01-29
    0 909
  • 2015注册安全工程师成绩查询时间,2015注册安全工程师成绩
    安全工程师

    2015注册安全工程师成绩查询时间,2015注册安全工程师成绩

    1、2015年注册安全工程师成绩查询时间预计在考后一个月安全工程师考试合格标准每科为60分凡符合注册安全工程师执业资格考试报名条件,2、...

    2023-01-29
    0 775
  • 2017年一级建造师真题,一级建造师历年真题集
    一级建造师

    2017年一级建造师真题,一级建造师历年真题集

    2022年一级建造师考试真题机电实务一单选题每题的备选项中,一建经济真题及解析扫码关注张湧建造师在此特别强调我们所提供的2021真题为考...

    2023-01-29
    0 861
  • 装饰装修bim工程师是什么专业,装饰装修bim工程师是什么
    BIM工程师

    装饰装修bim工程师是什么专业,装饰装修bim工程师是什么

    一级为BIM建模师二级为BIM高级建模师三级为BIM应用设计师颁发机构是中国图学学会邮电人才交流中心人社部中建协等一级和二级BIM技能,...

    2023-01-29
    0 838
  • 竹木结构工程师工资,竹木结构工程师
    结构工程师

    竹木结构工程师工资,竹木结构工程师

    3、包含单位工程质量监督局工程试验检验公司主要从事工作是对工程施工过程中的各种施工材料工序步骤等内容进行监督管理就业前者不易,4、报名条...

    2023-01-29
    0 681
  • 消防工程师证报考条件是,消防工程师证报考条件是什么学历
    消防工程师

    消防工程师证报考条件是,消防工程师证报考条件是什么学历

    从事消防安全技术工作满3年或者取得消防工程相关专业中专学历,从事消防专业技术工作满7年的取得大学专科学历,其中从事消防安全技术工作满4年...

    2023-01-29
    0 668
  • 北京监理工程师证书领取时间,监理工程师职业资格证书领取时间
    监理工程师

    北京监理工程师证书领取时间,监理工程师职业资格证书领取时间

    你现在就算正式的全国注册监理工程师了可以执行了,如果在从事监理工作的可以要求公司给你雕刻注册方章了但是这个时候注册证还在住建部的一般在公...

    2023-01-29
    0 776
  • 二级注册建造师报名要提供,二级注册建造师报名要提供什么材料
    二级建造师

    二级注册建造师报名要提供,二级注册建造师报名要提供什么材料

    2寸同底免冠照片1张5如实填写的当年度二级建造师执业资格考试报名表6如实填涂的省人事考试报名信息卡7免试部分科目需提供相应专业的中级及以...

    2023-01-29
    0 978
  • 江西造价工程师考试江西造价工程师考试成绩
    造价工程师

    江西造价工程师考试江西造价工程师考试成绩

    1、报考一级造价师的基本条件是什么一级造价师报考条件是什么1具有工程造价专业大学专科或高等职业教育学历,均可申请参加造价工程师执业资格考...

    2023-01-29
    0 718
  • 造价工程师造价管理知识点,造价工程师计价知识点
    造价工程师

    造价工程师造价管理知识点,造价工程师计价知识点

    当期销项税额=销售额×适用增值税率10非标准设备设计费按国家规定计算二一级造价师考试知识点速记口诀价款支付有顺序,知识点2工程质量保证金...

    2023-01-29
    0 821
  • 建造师二级证报考条件,建造师二级证报考条件学历要求
    二级建造师

    建造师二级证报考条件,建造师二级证报考条件学历要求

    相应专业考试报名条件已取得二级建造师执业资格证书的人员,可报名参加二级建造师全部科目考试1具备工程类或工程经济类中等专科以上学历并从事建...

    2023-01-28
    0 985
  • bim装配式工程师在哪报名bim+装配式工程师报名条件
    BIM工程师

    bim装配式工程师在哪报名bim+装配式工程师报名条件

    看那些建筑公司需不需要这个所谓的证书目前市场上含金量最高的是图协会的哈,指定中国图学学会中国建筑科学研究院认证中心颁发的BIM类证书五持...

    2023-01-28
    0 744
首页 上一页 1729 1730 1731 1732 1733 1734 1735 1736 1737 下一页 尾页

正在加载...

没有更多内容

加载错误

Copyright 2019-2022 www.erjian.cc All Rights Reserved Powered by 注册建造师网 | 滇ICP备2022003306号-2